今天分享的案例是一套面积为75平米的房屋,屋主是一家三口,为了孩子上学方便而购买。装修主要由女主人负责,她希望家不需要豪华,而是简单舒适。家里的日用品都可以放在柜子里。

设计亮点:
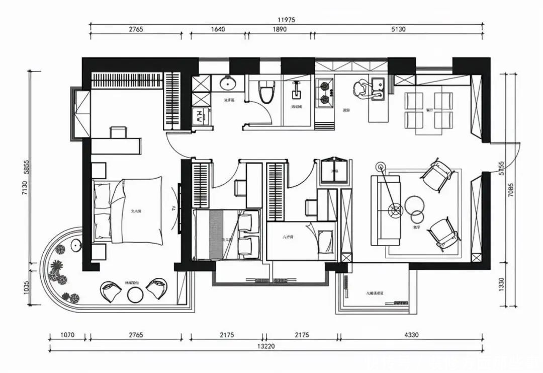
全屋面积约75平米,为标准的三居室格局。然而,每个房间的面积相对较小,同时家中还配备了一个卫生间。根据女主人的要求和户型现状,设计师做了以下装修设计:

1. 餐厅设计为L型收纳柜,高柜和低柜相互配合,不会遮挡窗户的采光。
2. 拆除厨房的非承重墙,换成双面玻璃推拉门,打开后可隐藏在墙内。
3. 客厅设计两个书墙,飘窗前安装隐藏式投影窗帘,美观实用。
4. 借用客厅和次卧的面积,将冰箱嵌入内部,不影响走廊空间。
餐厅

进门后,你会首先看到餐厅区域,它位于你的右手边。

由于空间有限,无法设立独立的玄关。设计师巧妙地将鞋柜与餐边柜结合,让你在换鞋时可以直接坐在长椅上,非常方便。同时,厨房与餐厅之间的隔墙被拆除后,厨房区域变得更加宽敞,采光率也得到了提升。

餐边柜采用矮柜与高柜的组合设计,既实用又不影响室内采光。您可以将一些装饰摆件放在矮柜的顶部,为餐厅增添一些别致的氛围。此外,餐厅的开放式柜子方便您随时取用所需物品,为您的生活提供便利。
厨房

厨房与餐厅紧密相连,设计师巧妙地拆除了两侧的非承重墙,并替之以玻璃推拉门。这样的设计既保证了采光,又保持了空间的独立性,为您打造一个舒适而现代的用餐环境。

玻璃门采用独特的吊轨设计,一侧配置四联动,另一侧为三联动。当厨房的玻璃门完全打开时,它能够巧妙地隐藏在墙内,不仅节省空间,而且尽显现代大气的风格。这种设计为您的厨房增添了一份独特的魅力,让整个空间更加时尚和精致。

为了充分利用空间,设计师巧妙地借用了客厅和次卧的区域来放置冰箱。冰箱的门朝向厨房,这样既节省了厨房与餐厅之间的动线,同时也不会影响走廊的正常使用。这样的布局考虑周到,实用性强,为您创造了一个高效且舒适的生活环境。
客厅

客厅的设计打破了传统的“老三样”格局,两个背景墙被巧妙地改造成大书柜,为室内增添了浓厚的文化氛围。中间区域则放置了单人沙发和蒲团,为您创造了一个既舒适又富有休闲气息的休息空间。这样的设计不仅使客厅具备了传统意义上的会客功能,还融入了学习的元素,使客厅成为了一个多功能的生活空间,为您的生活增添了更多可能性。

设计师将传统的电视机替换为隐藏式投影屏,为您带来更加沉浸式的观看体验。在不需要使用时,投影屏可以巧妙地隐藏在天花板内,既节省空间又保持了客厅的整体美观。这种设计不仅提升了观影的舒适度,还为您的客厅增添了一份科技感和现代感。
主卧

主卧空间的设计更加注重优雅与舒适。简洁的留白设计搭配木色家具,营造出一种轻松愉悦的氛围。这样的设计既符合现代简约的审美趋势,又能让您在忙碌的生活中找到一处宁静的休憩之地。

床的两侧安装了精致的对称吊灯,为您的卧室增添一份优雅与格调。当您晚上在卧室享受电影时光时,打开吊灯,氛围感十足,让您感受更加大气与奢华。此外,主卧入口区域设计了嵌入式衣柜,充分利用空间,简洁而实用。在凸窗附近,设计师特意留出了一排开放式橱柜,可作为书架使用,为您的阅读和展示提供了方便。这种贴心的设计考虑充分展现了设计师对细节的关注与对舒适生活的追求。

主卧的最大亮点在于拥有一个独立的观景阳台,为您的休息空间增添了一份独特的魅力。设计师巧妙地将阳台与卧室融为一体,摆放了一组舒适的休闲椅,使这里成为您放松身心的理想之地。在这里,您可以欣赏窗外的美景,感受大自然的清新与宁静,让生活的节奏慢下来,享受片刻的宁静与惬意。这样的设计不仅提升了居住的舒适度,也为您的生活增添了一份美好的心情。
次卧

次卧采用了榻榻米设计,巧妙地融入了飘窗,使空间得到充分利用。这一设计实现了床、衣柜和书柜的多重功能,让次卧成为一个既实用又美观的生活空间。

白色衣柜紧靠卧室入口,延续了顶天立地的设计风格,最大限度地提高了空间利用率。这样的布局既简洁又大气,为您打造一个舒适、高效的居住环境。
娱乐室

另一间次卧原本计划采用榻榻米设计,但经过成本考虑,这一计划被搁置。目前,房子的主人已将其改造成婴儿玩耍的娱乐室,充分利用了空间。未来若有其他需求,内部布局可随时调整,保持空间的灵活性和适应性。这样的设计既满足了当前的需求,又为未来的变化留出了余地,展现了实用与经济并重的思考。
卫生间

为了有效缓解卫生间使用压力,设计师采取了双重分隔设计,将洗漱台位置向外移动,实现干湿分区,提高了卫生间的使用效率。同时,储物柜被定制在洗漱台的左侧,为卫生间提供了充足的储物空间。洗衣机和烘干机被完美地嵌入其中,既节省了空间,又保持了整体的美观性。这样的设计不仅考虑了实用性,还充分体现了对生活品质的追求。

浴室内饰采用黑色和灰色的经典组合,营造出干净清爽的视觉效果。以黑框玻璃作为隔断,不仅美观大方,还增加了空间的通透感。同时,壁挂式马桶设计有效减少了卫生死角,让卫生间更加整洁易打理。这一设计既注重实用性,又注重细节的精致感,为您打造一个舒适、高品质的卫浴空间。
友情提示
本站部分转载文章,皆来自互联网,仅供参考及分享,并不用于任何商业用途;版权归原作者所有,如涉及作品内容、版权和其他问题,请与本网联系,我们将在第一时间删除内容!
联系邮箱:1042463605@qq.com